糖心vlog

欢迎访问糖心vlog 官方网站

通知公告

您现在的位置: 糖心vlog>通知公告>询价招标

糖心vlog 相关医疗设备市场调研/院内采购报名公告 (药物临床试验机构,第二次)

发布时间:2024-11-20来源:编辑:浏览:

分享到:


科室名称

项目名称

计量单位

数量

预算单价(万元)

预算总价(万元)

药物临床试验机构

分体空调

1

1.6

1.6

 

报名资料:

一、符合资质的单位持以下有效文件报名,所有资质均需加盖公章:

1.代理商企业营业执照

2.生产商营业执照

3.代理人授权书(含个人授权书)等有关证件。

4.属于医疗器械的产品,报名人提供整个授权链条的医疗器械经营许可证/备案,以及生产商营业执照、医疗器械生产许可证;同一品牌授权多家代理商的则报名无效或视同一家。

二、调研资料清单

1. 医疗设备情况调研表(点击下载

2. 医疗设备参数及配置清单

3. 销售记录:三家以上三甲医院销售发票、中标通知书或合同复印件

三、资料提交

电子版文件发送至邮箱:zsyygxyyyxgcb@163.com以报名公司+挂网日期+科室名称+项目名称命名),报名公司需扫描2024年设备挂网报名二维码填写相应信息(点击下载),不提供相关资料视为无效报名。

联系方式:住院部5楼医学工程部维修室2  0771-5722390

四、报名时间:20241120日至20241125

报名截止时间:2024112518:00

 

 

仅供参考,具体参数以科室实际需求为准

分体空调

一、参数需求情况

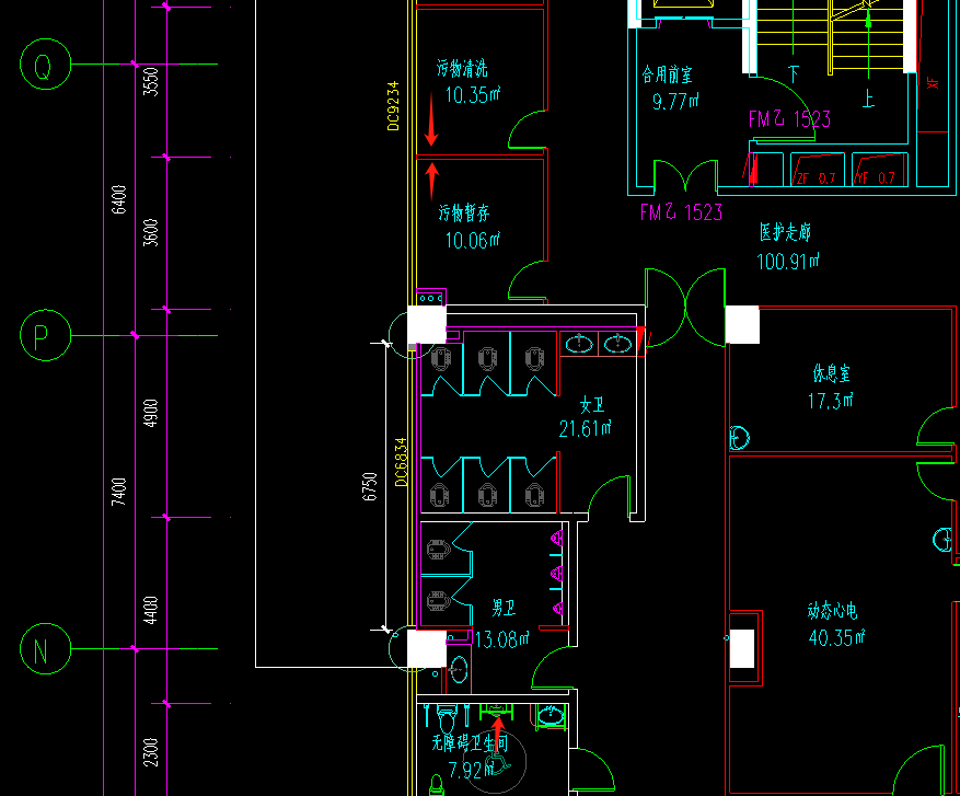
伦理资料室面积:7.92m2

GCP药房面积:10.06m2

GCP资料室面积:10.35m2

二、质保期≥3年

三、改造需求

药学部GCP办公室空调改造,分别为图上无障碍卫生间、污物暂存间、污物清洗间。该位置位于医院西侧,要求室内温度:15-25℃,湿度:35-65%。空调外机可放置于无障碍卫生间室外,院方负责布拉外机电源,室内已设有有排水孔。

四、附件:分体空调安装示意图(点击查看



序号

项目

型号/规格

单位

数量

备注

1

变频挂机1

制冷量≥3500W,

功率≥1150W

≥2

一级能效

2

变频挂机2

制冷量≥2500W,

功率≥750W

≥1

一级能效

3

铜管1

≥6#10#.4*1.5线

≥16


4

铜管2

≥6#/10#.4*1线

≥38


5

铁架1

≥3*3

≥1

根据现场焊接

6

铁架2

≥3*3

≥2

根据现场焊接

7

排水管

≥2.5PVC管

≥8


8

打孔

≥#60

≥8



返回顶部